27
$629,900 Sale
Listed 3 hours ago
939 Silverfox Crescent
· 3
· 3
· 3
· 1500-2000
Listing History
Buy/Sell/Terminated/Expired listing history for 939 Silverfox Crescent
Key Facts
Key facts for 939 Silverfox Crescent
Property Type
Townhome, 2-Storey
Parking
Attached 1 garage, 3 parking
MLS #
X12448493
Size
1500-2000 sqft
Basement
Unfinished
Listed on
2025-10-07
Lot size
30 x 109.47
Tax
$4,258.04 /yr
Days on Market
0
Approximate Age
6-15
Maintenance Fee
-
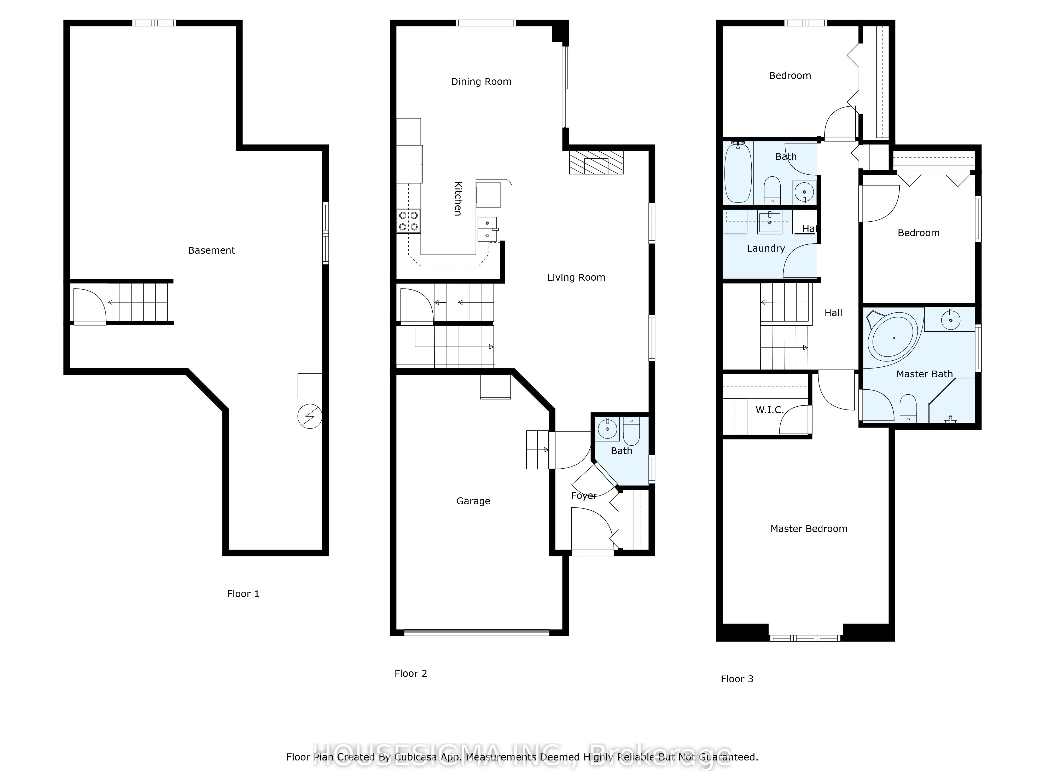
Description
Built in 2016, this beautifully maintained end unit FREEHOLD townhome offers the perfect blend of comfort, privacy, and low-maintenance living with NO CONDO FEES. Set in the sought-after Fox Field community of Northwest London, this home delivers exceptional value in a location thats close to parks,... schools, shopping, and more.Inside, youll find a bright, open-concept main floor designed for everyday living and effortless entertaining. The kitchen overlooks a spacious great room and eat-in dining area, with direct access to a covered porch and large deck, a private outdoor space perfect for summer dinners or quiet mornings with coffee. The fully fenced, professionally landscaped backyard includes a gas line for your BBQ, making it ideal for hosting.Upstairs offers three generously sized bedrooms, including a serene primary retreat with a walk-in closet and a private ensuite. A second-floor laundry room adds convenience and practicality to the layout.The full unfinished basement provides a blank canvas, ready for your personal touchwhether you're envisioning a home gym, rec room, or additional living space.This is a move-in-ready opportunity in one of Londons most desirable neighbourhoods! With the added bonus of being an end unit with no shared walls on one side, more natural light, and a greater sense of space.
Similar Properties (No results)
Room Types
Bathroom
-
Dimensions 7.58 x 5.15 feet
39.04 sqft
Bathroom
-
Dimensions 9.02 x 9.32 feet
84.07 sqft
Bedroom 2
-
Dimensions 9.02 x 10.3 feet
92.91 sqft
Courtesy of: HOUSESIGMA INC.